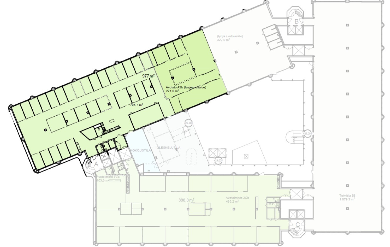
Vuokrattavana 3. kerroksen 271 m² toimistotila. Tila on osa 977 m2 toimistohuoneistoa.

Kiinteistöllä on oma aurinkovoimala ja BREEAM Very Good -sertifikaatti ja se käyttää kotimaista tuulisähköä.

Kiinteistössä kattavat palvelut mm. aulapalvelu, auditorio, neuvottelutiloja ja suihkulliset sosiaalitilat. Valoisalla atriumpihalla toimii Warrior Coffee Roasteryn kahvila. Kiinteistössä on lounas- ja kokoustarjoiluista vastaava Ravintola Valaja. Kiinteistössä on myös lastauslaituri sekä tavarahissit.

Kiinteistö sijaitsee hyvien kulkuyhteyksien varrella, Valimon juna-asemalle on lyhyt kävelymatka ja omalla autolla kiinteistöön pääsee sujuvasti suoraan Vihdintieltä tai Kehä I:n kautta. Kahdessa kiinteistön parkkihallissa ja ulkona sijaitsevalla parkkipaikalla on runsaasti pysäköintitilaa.

Kohteen tiedot

OsoiteValimotie 21, 00380 Helsinki
TilatyyppiToimistotila
Pinta-ala (m²)271 m²
EnergiatodistusEi lain edellyttämää energiatodistusta
VapautuminenHeti
VuokraSopimuksen mukaan
Kohdenumero21000409

Kysy lisää kohteesta

Teija Langhoff
Teija Langhoff
Vuokrauspäällikkö
Toimitilavuokraus | Retta Management
Valimotie 9-11, 00380 HELSINKI