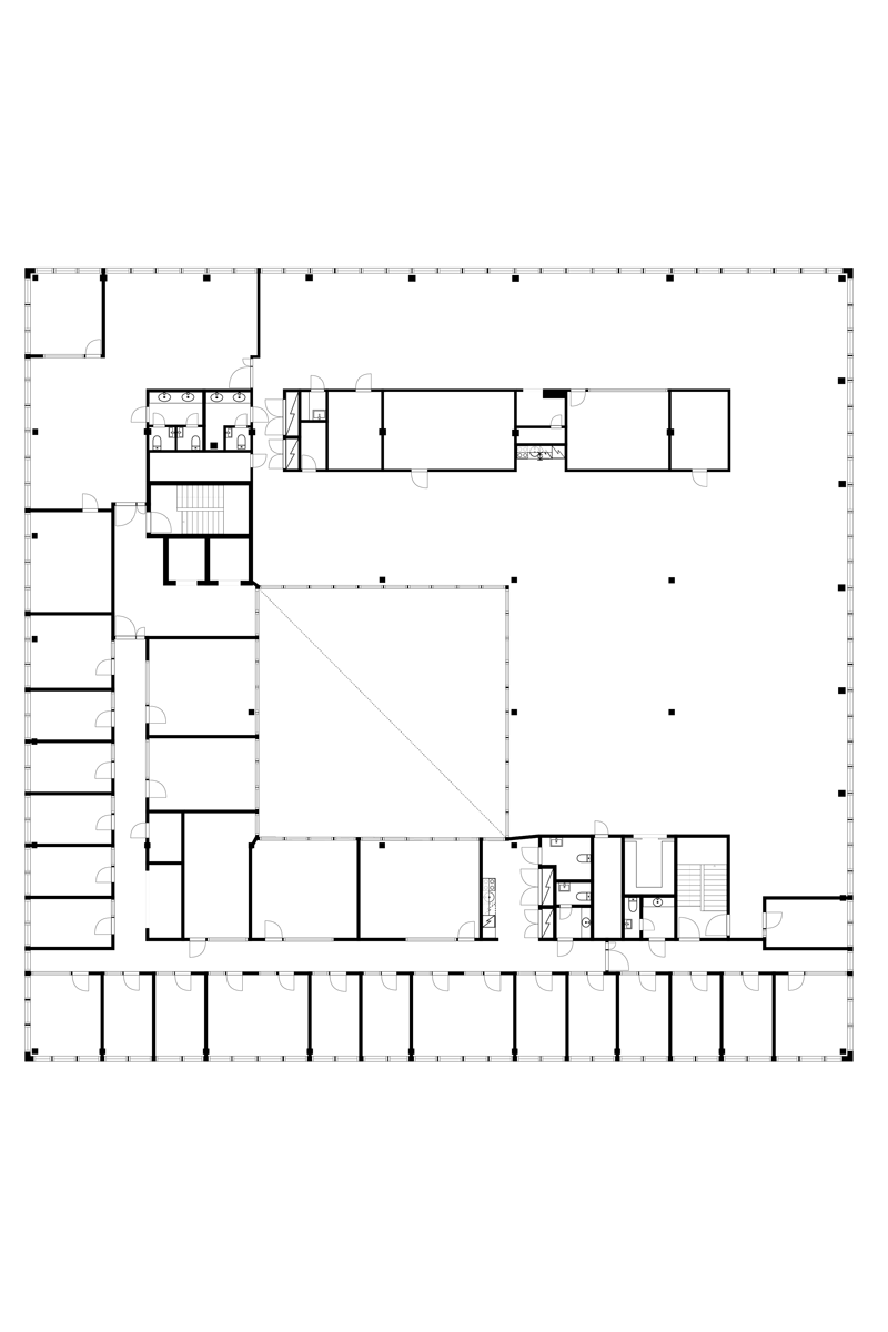
Business Park Sinihelmessä on vuokrattavana 2. kerroksen 1503 m² toimistotila, jossa on sekä toimistoja että avotiloja.

Kiinteistön ensimmäisessä kerroksessa on lounasravintola ja kauppakeskus Sellon runsaat palvelut ovat noin viiden minuutin ajomatkan päässä. Turunväylälle on vain kivenheitto, ja talon edustalla olevalla pysäköintialueella on runsaasti parkkipaikkoja.

Kysy lisätietoja!

Kohteen tiedot

Kohteen kartta ei ole saatavilla.
OsoiteSinimäentie 8B, 02630 Espoo
TilatyyppiToimistotila
Pinta-ala (m²)1 503 m²
EnergiatodistusEi lain edellyttämää energiatodistusta
VapautuminenHeti
VuokraSopimuksen mukaan
Kohdenumero20589451

Kysy lisää kohteesta

Tapio Reponen
Tapio Reponen
Vuokrauspäällikkö, LKV
Toimitilavuokraus | Retta Management
Valimotie 9-11, 00380 HELSINKI