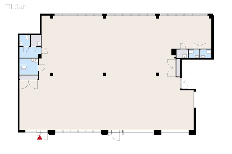
Vuokrataan katutason toimitila Pohjois-Haagan juna-aseman välittömästä läheisyydestä. Tämä avara kokonaisuus sopii liiketilaksi, myymäläksi tai toimistoksi, sen korkeus on 3,2 m. Tila on jaettavissa 172 ja 195 neliön toimitiloihin. Tilassa on kaksi siivouskomeroa ja neljä wc:tä, joista yksi on inva-wc. Ravintolakäyttöön se ei kuitenkaan sovellu.

Kiinteistössä käynnistyy laajamittainen peruskorjaus, joka valmistuu 08/2026. Ylempiin kerroksiin sijoittuu hoivapalveluita ja näihin katutason tiloihin joko toimistoja tai liiketiloja.

Käytännössä kaikki tilat rakennetaan uudestaan, ja mm. talotekniikka uudistetaan nykypäivän vaatimuksia huomioiden (jäähdytys yms.). Tässä vaiheessa on mahdollista vaikuttaa mm. tilan pohjapiirroksiin, jotka voidaan muokata omien tarpeiden mukaan.

Kiinteistöstä löytyy autopaikkoja, pyörävarasto sekä sosiaali- ja pesutilat. Tämä on loistava vaihtoehto toimijalle, joka hakee uutta saneerattua toimitilaa hyvien liikenneyhteyksien varrelta. Ota yhteyttä ja kysy lisätietoja!

Kohteen tiedot

Kohteen kartta ei ole saatavilla.
OsoiteKaupintie 5, 00440 HELSINKI
TilatyyppiLiiketila
Pinta-ala (m²)367 m²
EnergiatodistusOn lain edellyttämä energiatodistus
EnergialuokkaC2018
VapautuminenSopimuksen mukaan
VuokraSopimuksen mukaan
Kohdenumero21346740

Kysy lisää kohteesta

Simo Sipari
Simo Sipari
Vuokrauspäällikkö
Toimitilavuokraus | Retta Management
Valimotie 9-11, 00380 HELSINKI