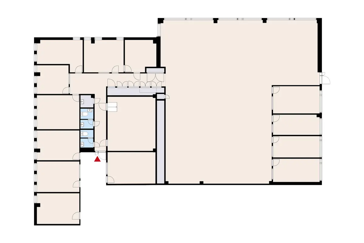
Vuokrataan siisti ja valoisa 495m² toimistotila kiinteistön ylimmästä eli 4. kerroksesta. Tilat koostuvat isosta avotilasta, jossa 4 kpl työhuoneita. Lisäksi toinen osio koostuu monista erikokoisista työ- ja neuvotteluhuoneista. Remontoidaan täysin vuokralaisen tarpeiden mukaan.

Talo tarjoaa vuokralaisten käyttöön ilmaiseksi 2 kpl neuvotteluhuoneita 1. kerroksesta, jotka varataan varausjärjestelmän kautta. Kiinteistöllä oma parkkihalli, josta mahdollisuus saada pysäköintioikeuksia. Kellarista mahdollista vuokrata varastotilaa! 

Huom! Osa kuvista on showroomista/mallitoimistosta. 

Kysy rohkeasti lisätietoja ja sovitaan käynti kohteella jo tänään!

Kiinteistön palvelut

Sauna

Pukeutumis- ja pesutilat

Kohteen tiedot

OsoiteHatanpään valtatie 18, 33100 Tampere
TilatyyppiToimistotila
Pinta-ala (m²)495 m²
EnergiatodistusOn lain edellyttämä energiatodistus
EnergialuokkaD
VapautuminenHeti vapaa
VuokraSopimuksen mukaan
Kohdenumero301021883

Kysy lisää kohteesta

Mikko Ranta
Mikko Ranta
Leasing manager
Toimitilavuokraus | Retta Management
Valimotie 9-11, 00380 HELSINKI