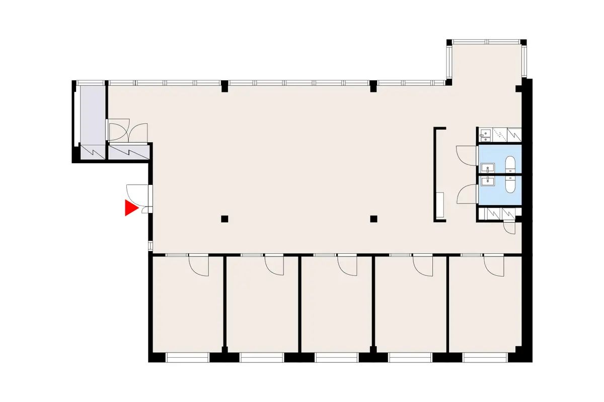
Kolmannen kerroksen toimtila Ansatie 6:n C-rapussa. Tässä avarassa tilassa avotila, 5 pientä työhuonetta, keittiö sekä wc:eet. Kiinteistö sijaitsee Vantaan Aviapoliksessa, aivan Kehä III:n läheisyydessä ja monipuolisten palveluiden keskellä. Perille pääsee niin autolla kuin julkisilla kulkuvälineilläkin hyvien liikkenneyhteyksien ansiosta.

Kiinteistön palvelut

Lounasravintola

Catering

Vuokrattavia neuvottelutiloja

Pukeutumis- ja pesutilat

Information om platsen

AdressAnsatie 6a, 01740 Vantaa
Typ av anläggningToimistotila
Yta (m²)170 m²
EnergicertifikatDet finns ett energicertifikat som krävs enligt lag
EnergiklassD
BefrielseHeti vapaa
Till uthyrningI enlighet med avtalet
Målantalet301022235

Fråga mer om resmålet

Simo Sipari
Simo Sipari
Toimitilavuokraus | Retta Management
Valimotie 9-11, 00380 HELSINKI