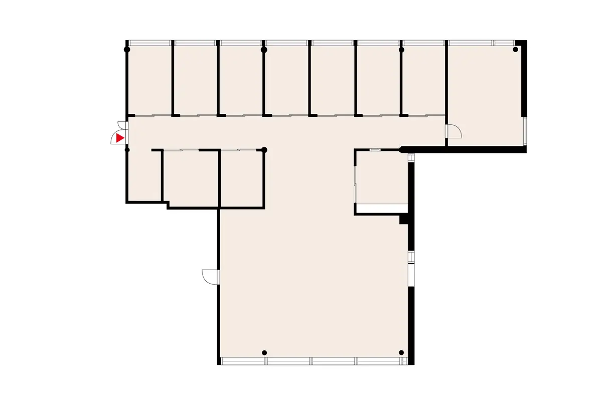
Vuokrataan toisen kerroksen valoisa toimistotila. Tämä tila koostuu avotilasta, työhuoneista, parista erikokoisesta neuvotteluhuoneesta ja toimivasta omasta keittiöstä / taukotilasta. Kiinteistö sijaitsee hyvien kulkuyhteyksien päässä, näkyvällä paikalla Länsiväylän varrella. Ota yhteyttä ja kysy lisää tästä kohteesta!

Kiinteistön palvelut

Lounasravintola

Catering

Vuokrattavia neuvottelutiloja

Sauna

Videoneuvottelu

Siivous

Pukeutumis- ja pesutilat

Pyörävarasto

Premise details

AddressNiittytaival 13, 02200 Espoo
Premises typeToimistotila
Surface area (m²)305 m²
Energy certificateThere is an energy certificate required by law
Energy classD
Release dateVapautumassa oleva
RentAccording to the agreement
Premise number301022448

Ask more about the destination

Tapio Reponen
Tapio Reponen
Vuokrauspäällikkö, LKV
Toimitilavuokraus | Retta Management
Valimotie 9-11, 00380 HELSINKI