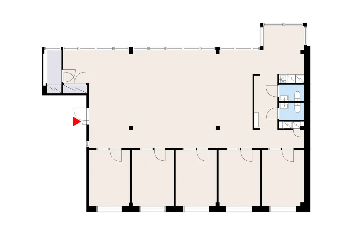
Kolmannen kerroksen toimtila Ansatie 6:n C-rapussa. Tässä avarassa tilassa avotila, 5 pientä työhuonetta, keittiö sekä wc:eet. Kiinteistö sijaitsee Vantaan Aviapoliksessa, aivan Kehä III:n läheisyydessä ja monipuolisten palveluiden keskellä. Perille pääsee niin autolla kuin julkisilla kulkuvälineilläkin hyvien liikkenneyhteyksien ansiosta.

Kiinteistön palvelut

Lounasravintola

Catering

Vuokrattavia neuvottelutiloja

Pukeutumis- ja pesutilat

Premise details

AddressAnsatie 6a, 01740 Vantaa
Premises typeToimistotila
Surface area (m²)170 m²
Energy certificateThere is an energy certificate required by law
Energy classD
Release dateHeti vapaa
RentAccording to the agreement
Premise number301022235

Ask more about the destination

Simo Sipari
Simo Sipari
Toimitilavuokraus | Retta Management
Valimotie 9-11, 00380 HELSINKI